La Maison de Pays -origine, fonctionnement

 
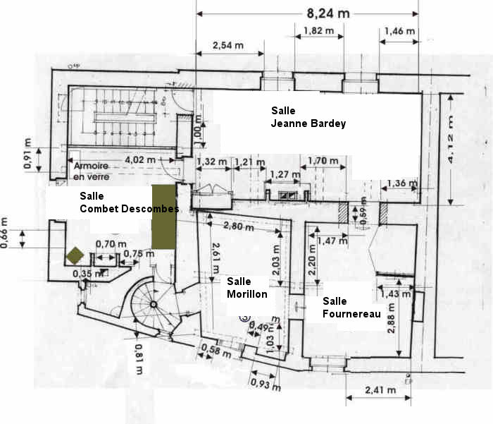
Plan du 1er étage avec les longueurs d'accrochage et le plan avec les repères des photos
plan 1er
 
plan avec les liens vers les photos repérées
(clic sur les cadres)
 
repère photos